Anunț

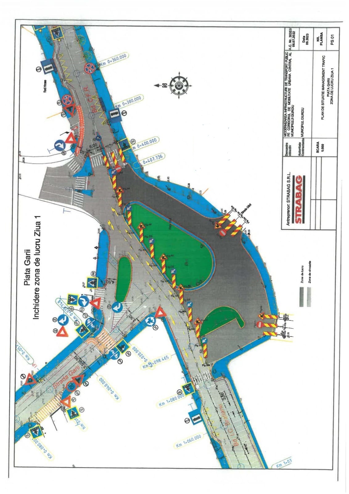
În perioada 22-23 septembrie vor fi executate lucrări de așternere a mixturii asfaltice în sensul giratoriu de la Piața Gării.
Operațiunile vor fi executate cu închiderea sensului giratoriu, iar devierea traficului rutier va fi realizată conform planurilor de mai jos (ziua 1 și ziua 2).

Ultima modificare: 22.09.2023 – 08:11 de către Administrator

Anteriorul Vernisajul expoziției „Din comorile etnografice ale Munteniei”
Primăria Municipiului Giurgiu © 2025. Toate drepturile rezervate.